2-Zimmer-Wohnung mit Loggia, Top 1
Fischauergasse 169 A / Top 1
2700 Wiener Neustadt
2700 Wiener Neustadt
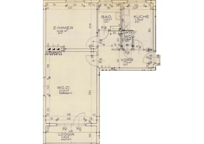
Nutzfläche | 62,90 m² |
---|---|
Zimmer | 2 |
Miete brutto | € 500,91 (inkl. Betriebskosten und Umsatzsteuer) |
Eigenmittel | € 2.555,29 |
Objekt Nr. | 10390-001 |
Wohnen beim Fischerpark
Überblick
Objektart | Wohnung |
---|---|
Rechtsform | Miete |
Kategorie | Wiedervermietung |
Befristung | Unbefristet |
Erstbezug | 01.03.1968 |
---|---|
Verfügbar ab | 01.12.2025 |
Geschoss | Erdgeschoss |
Aufzug | nein |
Details
- 2 Zimmer inklusive Wohnküche
- 1 Küche
- 1 Vorraum
- 1 Badezimmer
- 1 WC
- 1 Loggia (5,20 m²)
- 1 Kellerabteil
Downloads
Energieausweis: HWB: 30,40 kWh/m²a (Energieklasse b) – fGEE: 0,75 (Energieklasse a) – Gültig bis: 26.09.2027
Noch Fragen?

Ansprechpartnerin