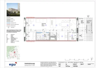
1-Zimmer-Wohnung mit Balkon, Top 24
Taborstraße 113 / Top 24
1020 Wien
1020 Wien
| Nutzfläche | 50,23 m² |
|---|---|
| Zimmer | 1 |
| Miete brutto | € 942,60 (inkl. Betriebskosten und Umsatzsteuer) |
| Kaution | € 2.827,80 |
| Objekt Nr. | 38221-022 |
Mitten im Zweiten - LOFT-FLÜGEL
Überblick
| Objektart | Wohnung |
|---|---|
| Rechtsform | Miete |
| Kategorie | Wiedervermietung |
| Befristung | Unbefristet |
| Erstbezug | 01.01.2025 |
|---|---|
| Verfügbar ab | 01.02.2026 |
| Geschoss | 4. Obergeschoss |
| Aufzug | ja |
Details
- 1 Zimmer inklusive Wohnküche
- 1 Vorraum
- 1 Bad mit WC
- 1 Balkon (8,86 m²)
- 1 Kellerabteil (4,60 m²)
Ausstattung Wohnung
- Diese Wohnung ist bauseits als LOFT-Wohnung ausgeführt und besteht aus 1 großen Wohnraum ohne Zimmertrennwände. Ein Vorraum und der Sanitärraum / die Sanitärraume sind räumlich abgetrennt. Das Loft verfügt über eine Ausbaumöglichkeit durch die Mieter und kann über die Jahre mitwachsen. Durch das Aufstellen von Zimmertrennwänden und spätere Zusammenlegung von Räumen ist eine Gestaltung nach den jeweiligen Wohnbedürfnissen der Mieter möglich.
Ausstattung Wohnhausanlage
- Kleinkinderspielplatz auf der Gemeinschaftsterrasse 1.OG
- Gemeinschaftsräume im Wohnhochhaus
- Kinderwagenabstellraum im UG
- Fahrradabstellräume im Verbindungsbau und im Wohnhochhaus
- Waschsalon im Wohnhochhaus
- Tiefgarage
Lage
Im 2. Wiener Gemeindebezirk auf dem Areal des trendigen Nordbahnviertels, einem Stadtentwicklungsgebiet zwischen Prater, Augarten und Donauinsel.
Die ausgezeichneten Verkehrsanbindungen an die U1 (Vorgartenstraße) sowie an die Buslinien 5A, 5B, 11A, 11B, 37A, 82A und Straßenbahnlinie 0, 2 und 5 ermöglichen eine direkte Verbindung ins Zentrum der Wiener Innenstadt sowie zu dem einzigartigen Angebot an Naherholung: innerhalb von 15-20 Minuten erreichen Sie Hotspots wie Augarten, Donaukanal, Praterallee und Donauinsel.
Energieausweis: HWB: 24,50 kWh/m²a (Energieklasse b) – fGEE: 0,80 (Energieklasse a) – Gültig bis: 18.08.2034
Noch Fragen?

Ansprechpartnerin











