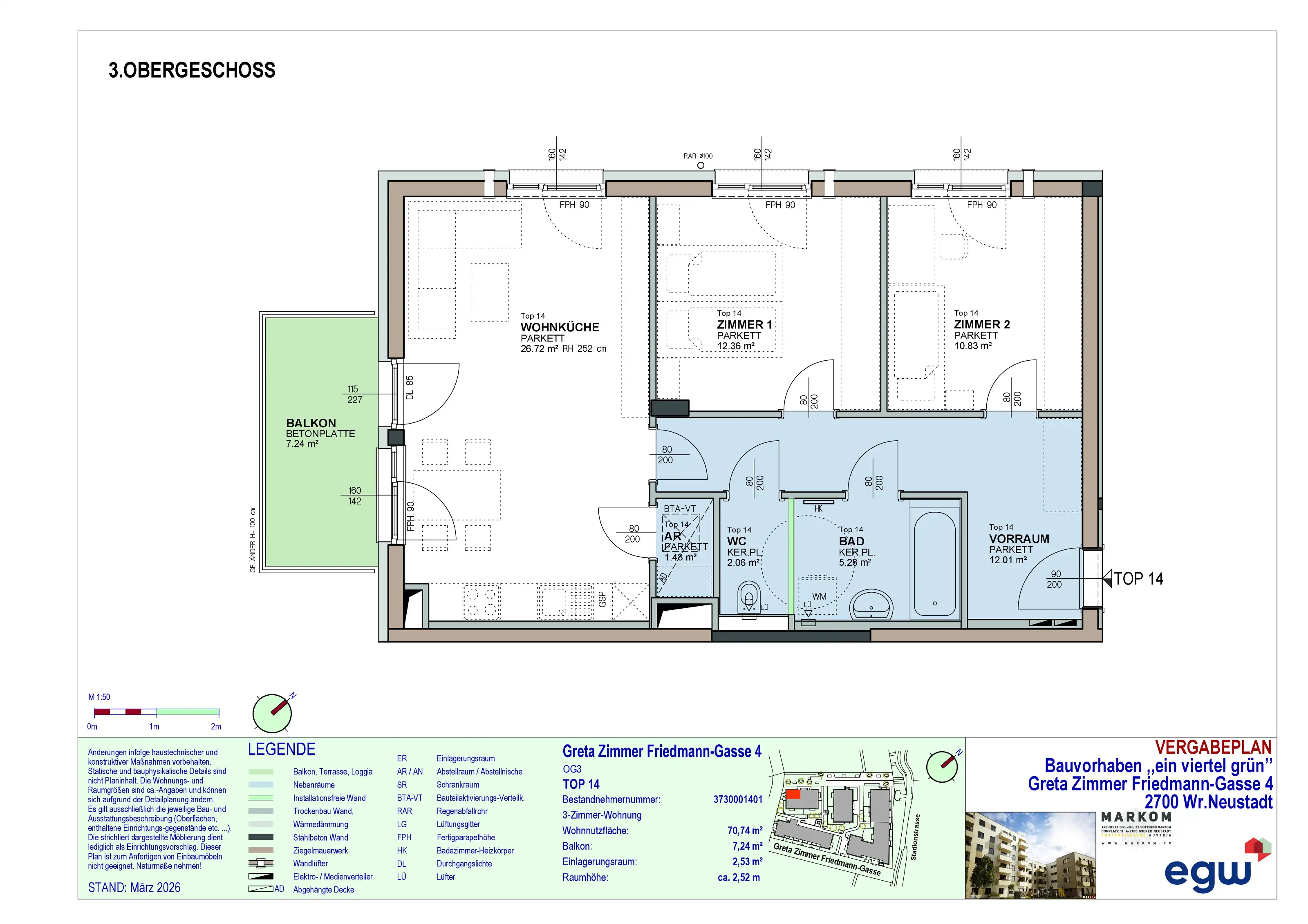
3-Zimmer-Wohnung mit Balkon, Top 14
Greta Zimmer Friedmann-Gasse 4 / Top 14
2700 Wiener Neustadt
2700 Wiener Neustadt
| Nutzfläche | 70,74 m² |
|---|---|
| Zimmer | 3 |
| Miete brutto | € 867,51 (inkl. Betriebskosten und Umsatzsteuer) |
| Eigenmittel | € 6.420,00 |
| Objekt Nr. | 37300-014 |
Überblick
| Objektart | Wohnung |
|---|---|
| Rechtsform | Miete |
| Finanzierung | Gefördert |
| Förderung | NÖ 2005 rückz.AZ |
| Kategorie | Neubau |
| Befristung | Unbefristet |
|---|---|
| Geschoss | 3. Obergeschoss |
| Aufzug | ja |
| Fertigstellung | 4. Quartal 2026 |
Details
- 3 Zimmer inklusive Wohnküche
- 1 Vorraum
- 1 Badezimmer
- 1 WC
- 1 Abstellraum
- 1 Balkon (7,24 m²)
- 1 Kellerabteil (2,53 m²)
Ausstattung Wohnung
- Parkettböden und Keramikboden
- Küchenanschlüsse vorhanden, ohne Küchenmöbel
- Außenjalousien, wo es bauphysikalisch notwendig ist.
Ausstattung Wohnhausanlage
- Photovoltaikanlage
- Aufzug
- Fahrradraum und Fahrradabstellplätze im Freien
- Waschküche
- Autoabstellplätze in der Garage
- Kinderspielplatz
- Gemeinschaftsraum für das gesamte Areal "ein viertel grün" im EG des Wohnhauses Elisabeth Bollenberger-Gasse 5 (BF 6a).
Lage
Profitieren Sie von einer hervorragenden Anbindung an öffentliche Verkehrsmittel, Einkaufsmöglichkeiten (Merkur-City) und Freizeitangeboten. Die Altstadt von Wiener Neustadt ist nur einen kurzen Spaziergang entfernt.
Naherholungsgebiete: Das ehemalige Stadionareal bietet Ihnen nicht nur urbanes Wohnen, sondern auch zahlreiche Möglichkeiten für sportliche Aktivitäten und entspannte Spaziergänge in der Natur.
Downloads
- Energieausweis Greta Zimmer-Friedmann-Gasse 4
- Geschossplan_1.OG_Greta_Zimmer_Friedmann-Gasse 4
- Geschossplan_2.OG_Grete_Zimmer_Friedmann-Gasse_4
- Geschossplan_3.OG_Grete_Zimmer_Friedmann-Gasse_4
- Geschossplan_4.OG_Grete_Zimmer_Friedmann-Gasse_4
- Geschossplan_EG_Grete_Zimmer_Friedmann-Gasse_4
- Prospekt
- Geschossübersichtsplan_Kellergeschoss
Energieausweis: HWB: 25,00 kWh/m²a (Energieklasse a) – fGEE: 0,74 (Energieklasse a) – Gültig bis: 08.07.2030
Noch Fragen?

Ansprechpartnerin



