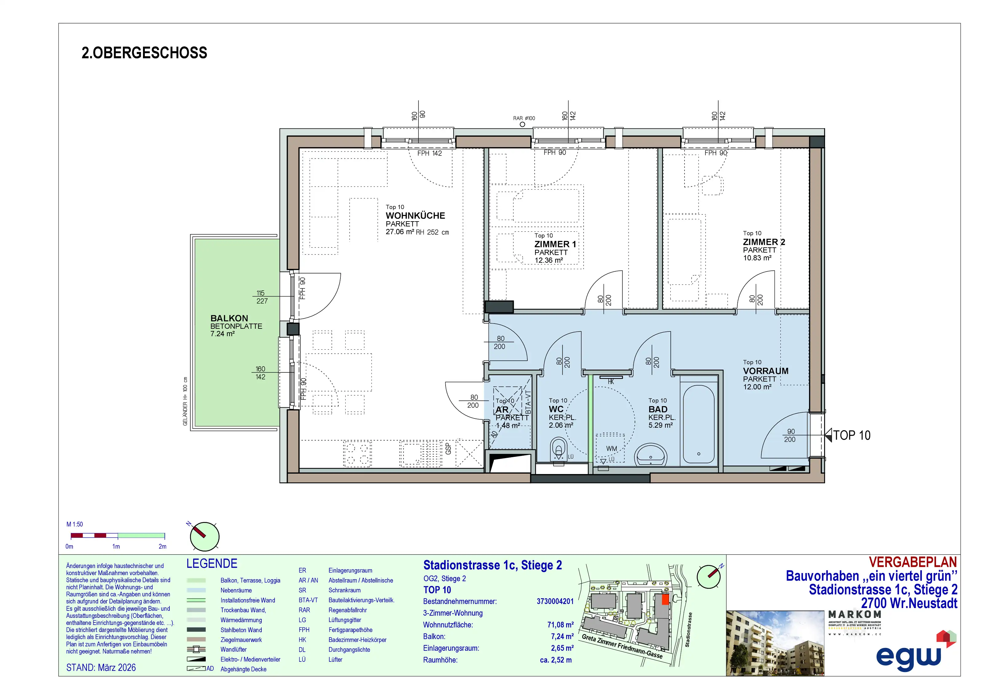
3-Zimmer-Wohnung mit Balkon, Top 10
Stadionstraße 1C, Stiege 2 / Top 10
2700 Wiener Neustadt
2700 Wiener Neustadt
| Nutzfläche | 71,08 m² |
|---|---|
| Zimmer | 3 |
| Miete brutto | € 871,68 (inkl. Betriebskosten und Umsatzsteuer) |
| Eigenmittel | € 6.451,00 |
| Objekt Nr. | 37300-042 |
Überblick
| Objektart | Wohnung |
|---|---|
| Rechtsform | Miete |
| Finanzierung | Gefördert |
| Förderung | NÖ 2005 rückz.AZ |
| Kategorie | Neubau |
| Befristung | Unbefristet |
|---|---|
| Geschoss | 2. Obergeschoss |
| Aufzug | ja |
| Fertigstellung | 4. Quartal 2026 |
Details
- 3 Zimmer inklusive Wohnküche
- 1 Vorraum
- 1 Badezimmer
- 1 WC
- 1 Abstellraum
- 1 Balkon (7,24 m²)
- 1 Kellerabteil (2,65 m²)
Ausstattung Wohnung
- Parkettböden und Keramikboden
- Küchenanschlüsse vorhanden, ohne Küchenmöbel
- Außenjalousien, wo es bauphysikalisch notwendig ist.
Ausstattung Wohnhausanlage
- Photovoltaikanlage
- Aufzug
- Fahrradraum und Fahrradabstellplätze im Freien
- Waschküche
- Autoabstellplätze in der Garage
- Kinderspielplatz
- Gemeinschaftsraum für das gesamte Areal "ein viertel grün" im EG des Wohnhauses Elisabeth Bollenberger-Gasse 5 (BF 6a).
Lage
Profitieren Sie von einer hervorragenden Anbindung an öffentliche Verkehrsmittel, Einkaufsmöglichkeiten (Merkur-City) und Freizeitangeboten. Die Altstadt von Wiener Neustadt ist nur einen kurzen Spaziergang entfernt.
Naherholungsgebiete: Das ehemalige Stadionareal bietet Ihnen nicht nur urbanes Wohnen, sondern auch zahlreiche Möglichkeiten für sportliche Aktivitäten und entspannte Spaziergänge in der Natur.
Downloads
- Energieausweis Stadionstraße 1c, Stiege 1 u. 2
- Geschossplan_1.OG_Stadionstraße_1C_Stiege_2
- Geschossplan_2.OG_Stadionstraße_1C_Stiege_2
- Geschossplan_3.OG_Stadionstraße_1C_Stiege_2
- Geschossplan_4.OG_Stadionstraße_1C_Stiege_2
- Geschossplan_5.OG_Stadionstraße_1C_Stiege_2
- Geschossplan_EG_Stadionstraße_1C_Stiege_2
- Prospekt
- Geschossübersichtsplan_Kellergeschoss
Energieausweis: HWB: 24,20 kWh/m²a (Energieklasse a) – fGEE: 0,73 (Energieklasse a) – Gültig bis: 08.07.2030
Noch Fragen?

Ansprechpartnerin



