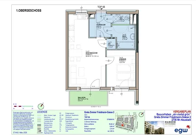
2-Zimmer-Wohnung mit Balkon, Top 6
Greta Zimmer Friedmann-Gasse 2 / Top 6
2700 Wiener Neustadt
2700 Wiener Neustadt
| Nutzfläche | 53,24 m² |
|---|---|
| Zimmer | 2 |
| Miete brutto | € 538,03 (inkl. Betriebskosten und Umsatzsteuer) |
| Eigenmittel | € 4.832,00 |
| Objekt Nr. | 37300-081 |
Überblick
| Objektart | Wohnung |
|---|---|
| Rechtsform | Miete |
| Finanzierung | Gefördert |
| Förderung | NÖ 2005 rückz.AZ |
| Kategorie | Neubau |
| Befristung | Unbefristet |
|---|---|
| Geschoss | 1. Obergeschoss |
| Aufzug | ja |
| Fertigstellung | 4. Quartal 2026 |
Details
- 2 Zimmer inklusive Wohnküche
- 1 Vorraum
- 1 Badezimmer
- 1 WC
- 1 Abstellraum
- 1 Balkon (6,04 m²)
- 1 Kellerabteil (3,15 m²)
- Die 2 Zimmer Wohnungen sind zusätzlich mit der Förderung "Junges Wohnen" gefördert. Diese Wohnungen sind für Mieter, die zum Zeitpunkt des Mietvertrages das 35. Lebensjahr noch nicht erreicht haben. Bei Paaren muss mindestens einer diese Bedingung erfüllen.
Ausstattung Wohnung
- Parkettböden und Keramikboden
- Küchenanschlüsse vorhanden, ohne Küchenmöbel
- Außenjalousien, wo es bauphysikalisch notwendig ist.
Ausstattung Wohnhausanlage
- Photovoltaikanlage
- Aufzug
- Fahrradraum und Fahrradabstellplätze im Freien
- Waschküche
- Autoabstellplätze in der Garage
- Kinderspielplatz
- Gemeinschaftsraum für das gesamte Areal "ein viertel grün" im EG des Wohnhauses Elisabeth Bollenberger-Gasse 5 (BF 6a).
Lage
Profitieren Sie von einer hervorragenden Anbindung an öffentliche Verkehrsmittel, Einkaufsmöglichkeiten (Merkur-City) und Freizeitangeboten. Die Altstadt von Wiener Neustadt ist nur einen kurzen Spaziergang entfernt.
Naherholungsgebiete: Das ehemalige Stadionareal bietet Ihnen nicht nur urbanes Wohnen, sondern auch zahlreiche Möglichkeiten für sportliche Aktivitäten und entspannte Spaziergänge in der Natur.
Energieausweis: HWB: 28,30 kWh/m²a (Energieklasse b) – fGEE: 0,74 (Energieklasse a) – Gültig bis: 08.07.2030
Noch Fragen?

Ansprechpartnerin



