Überblick
| Objektart | Wohnung |
|---|---|
| Rechtsform | Miete |
| Kategorie | Wiedervermietung |
| Befristung | Unbefristet |
| Erstbezug | 28.09.1940 |
|---|---|
| Verfügbar ab | 01.07.2026 |
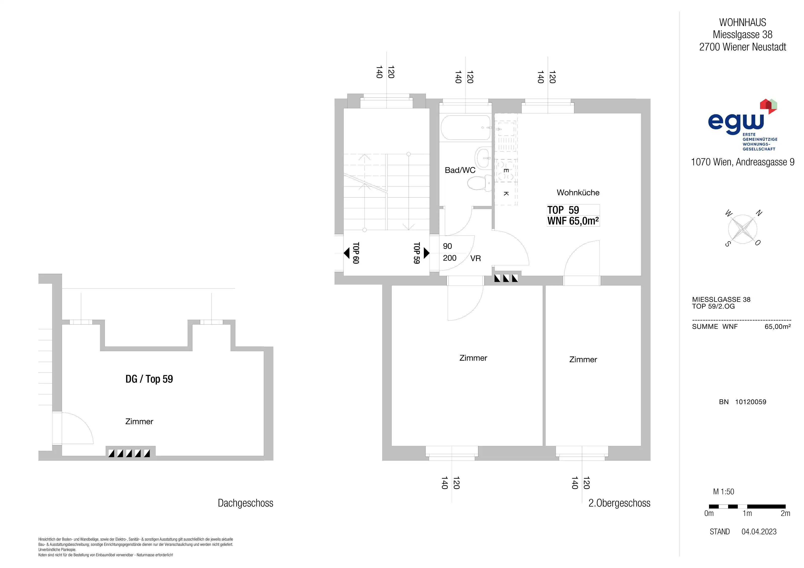
| Geschoss | 2. OG & 1. DG |
| Aufzug | nein |
Details
- 3 Zimmer inklusive Wohnküche
- 1 Vorraum
- 1 Dachboden
- 1 Bad mit WC
- 1 Kellerabteil
Downloads
Energieausweis: HWB: 32,30 kWh/m²a (Energieklasse b) – fGEE: 0,66 (Energieklasse b) – Gültig bis: 25.06.2025
Noch Fragen?

Ansprechpartnerin














