Überblick
| Objektart | Wohnung | 
|---|---|
| Rechtsform | Miete | 
| Finanzierung | Gefördert | 
| Förderung | NÖ 2005 rückz.AZ | 
| Kategorie | Wiedervermietung | 
| Befristung | Unbefristet | 
|---|---|
| Erstbezug | 01.01.2021 | 
| Verfügbar ab | 01.02.2026 | 
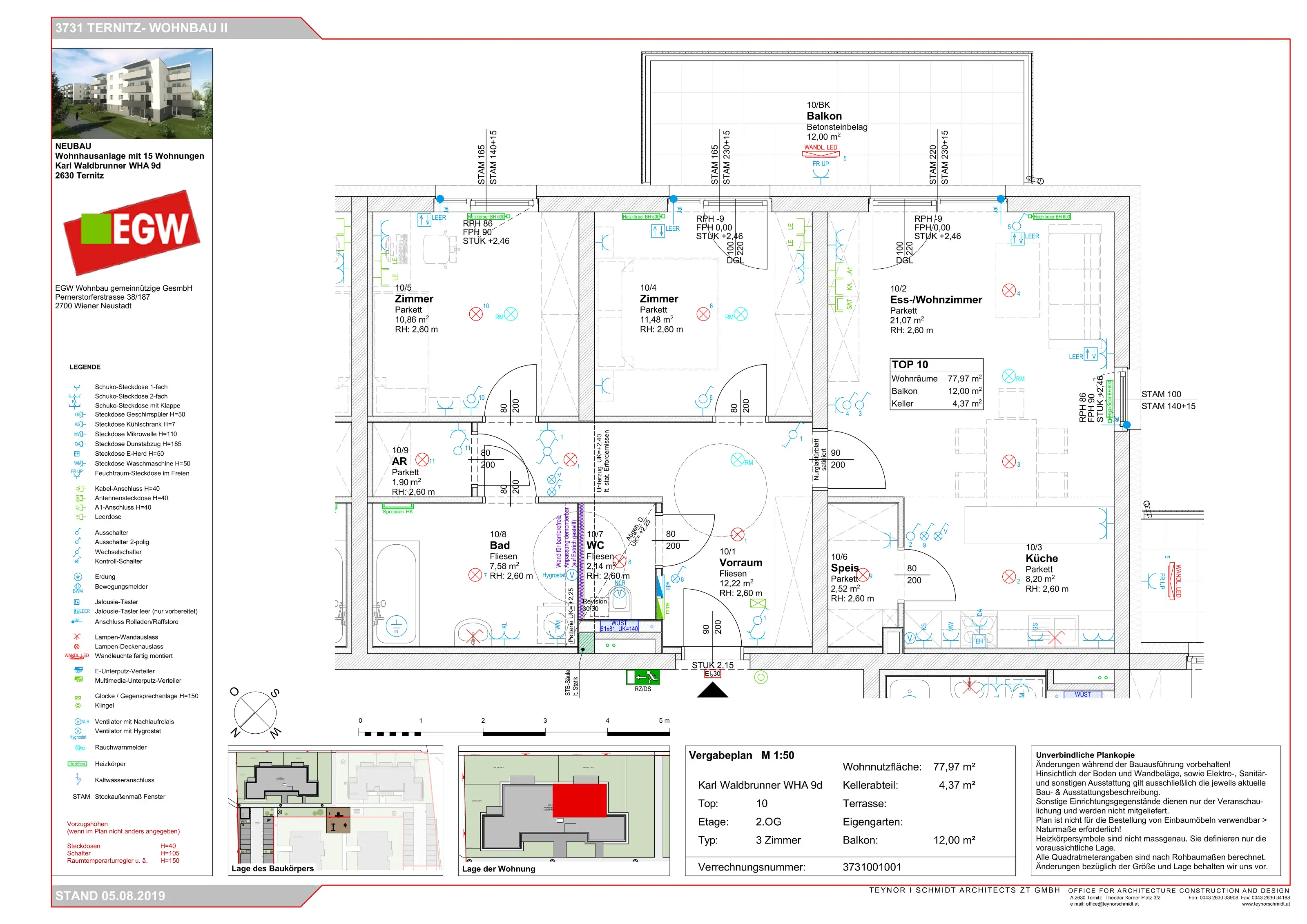
| Geschoss | 2. Obergeschoss | 
| Aufzug | ja | 
Details
- 3 Zimmer inklusive Wohnküche
- 1 Küche
- 1 Vorraum
- 1 Badezimmer
- 1 WC
- 1 Abstellraum
- 1 Balkon (12,00 m²)
- 1 Kellerabteil (4,37 m²)
Ausstattung Wohnhausanlage
- Kinderwagen- und Fahrradabstellraum
- Waschküche
- Allgemeingarten und Kinderspielplatz
- Aufzug
Downloads
Energieausweis: HWB: 30,57 kWh/m²a (Energieklasse b) – fGEE: 0,74 (Energieklasse a) – Gültig bis: 24.01.2029
Noch Fragen?
            
Ansprechpartnerin
                    
                
