Überblick
| Objektart | Wohnung |
|---|---|
| Rechtsform | Miete |
| Kategorie | Wiedervermietung |
| Befristung | Unbefristet |
| Erstbezug | 01.11.1997 |
|---|---|
| Verfügbar ab | 01.12.2025 |
| Geschoss | 1. Dachgeschoss |
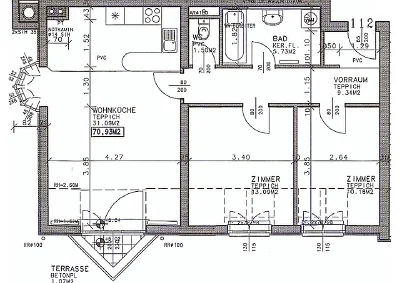
Details
- 3 Zimmer inklusive Wohnküche
- 1 Vorraum
- 1 Badezimmer
- 1 WC
- 1 Terrasse (1,07 m²)
- 1 Kellerabteil
Downloads
Energieausweis: HWB: 64,50 kWh/m²a (Energieklasse c) – fGEE: 1,19 (Energieklasse c) – Gültig bis: 30.08.2031
Noch Fragen?

Ansprechpartnerin



