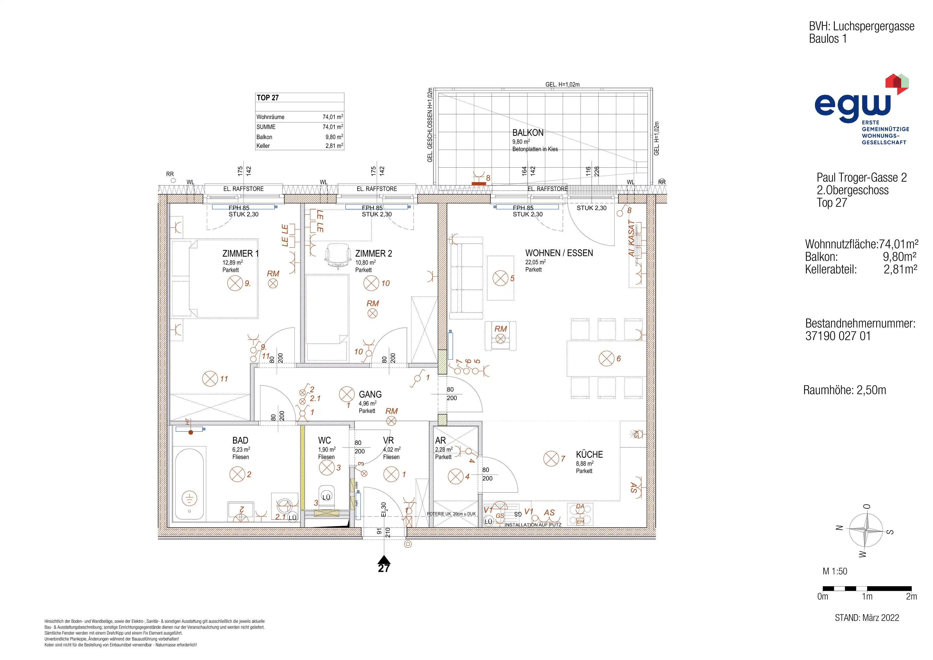
3-Zimmer-Wohnung mit Balkon, Top 27
Paul Troger-Gasse 2 / Top 27
2700 Wiener Neustadt
2700 Wiener Neustadt
| Nutzfläche | 74,21 m² |
|---|---|
| Zimmer | 3 |
| Miete brutto | € 846,55 (inkl. Betriebskosten und Umsatzsteuer) |
| Eigenmittel | € 5.366,46 |
| Objekt Nr. | 37190-027 |
Familienfreundliches Wohnen in zentraler Lage
Überblick
| Objektart | Wohnung |
|---|---|
| Rechtsform | Miete |
| Finanzierung | Gefördert |
| Förderung | NÖ 2005 rückz.AZ |
| Kategorie | Wiedervermietung |
| Befristung | Unbefristet |
|---|---|
| Erstbezug | 01.12.2022 |
| Verfügbar ab | 01.07.2026 |
| Geschoss | 2. Obergeschoss |
| Aufzug | ja |
Details
- 3 Zimmer inklusive Wohnküche
- 1 Vorraum
- 1 Badezimmer
- 1 WC
- 1 Abstellraum
- 1 Balkon (9,80 m²)
- 1 Kellerabteil (2,81 m²)
Ausstattung Wohnung
- Parkettboden und Keramikboden
- Außenjalousien
Ausstattung Wohnhausanlage
- Fahrrad- und Kinderwagenabstellfläche
- Waschküche
- Autoabstellplätze in der Tiefgarage und auch im Freien
- Tiefgaragenplatz mit E-Ladestation
- Photovoltaikanlage
Lage
Die Luchspergergasse ist eine Seitengasse des Zehnergürtels, welcher in Wiener Neustadt eine Hauptverkehrsader darstellt. Auch das Shoppingcenter Fischapark befindet sich in unmittelbarer Nähe, sodass die Versorgung des täglichen Bedarfes fußläufig erledigt werden kann. Gleichzeitig befindet sich das Grundstück gegenüber des Fischteichs und in unmittelbarer Nähe zur Schmuckerau und anderen Naherholungsgebieten in Wiener Neustadt.
Wiener Neustadt ist eine der innovativsten Städte des Industrieviertels. Wien ist sowohl öffentlich als auch mit dem Auto in ca. 45 Minuten erreichbar.
Energieausweis: HWB: 37,30 kWh/m²a (Energieklasse b) – fGEE: 0,85 (Energieklasse a) – Gültig bis: 05.04.2032
Noch Fragen?

Ansprechpartnerin

















