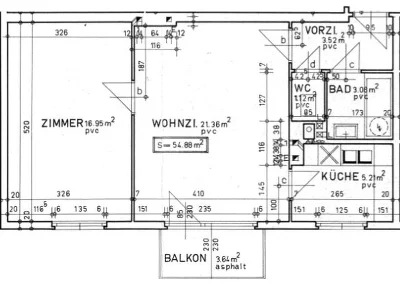
2-Zimmer-Wohnung mit Balkon, Top 25
Auf der Wieden 12 / Stiege V / Top 25
3270 Scheibbs
3270 Scheibbs
| Nutzfläche | 50,15 m² |
|---|---|
| Zimmer | 2 |
| Miete brutto | € 406,38 (inkl. Betriebskosten und Umsatzsteuer) |
| Eigenmittel | € 1.570,65 |
| Objekt Nr. | 10500-025 |
Wohnen in Scheibbs
Überblick
| Objektart | Wohnung |
|---|---|
| Rechtsform | Miete |
| Kategorie | Wiedervermietung |
| Befristung | Unbefristet |
| Erstbezug | 01.01.1965 |
|---|---|
| Verfügbar ab | 01.05.2026 |
| Geschoss | Erdgeschoss |
Details
- 2 Zimmer
- 1 Küche
- 1 Vorraum
- 1 Badezimmer
- 1 WC
- 1 Balkon (3,64 m²)
- 1 Kellerabteil
Energieausweis: HWB: 41,10 kWh/m²a (Energieklasse b) – fGEE: 2,27 (Energieklasse d) – Gültig bis: 29.05.2033
Noch Fragen?

Ansprechpartnerin





